1236 Viewmont Dr
Clarksville, TN 37040

Scroll to Content

Images

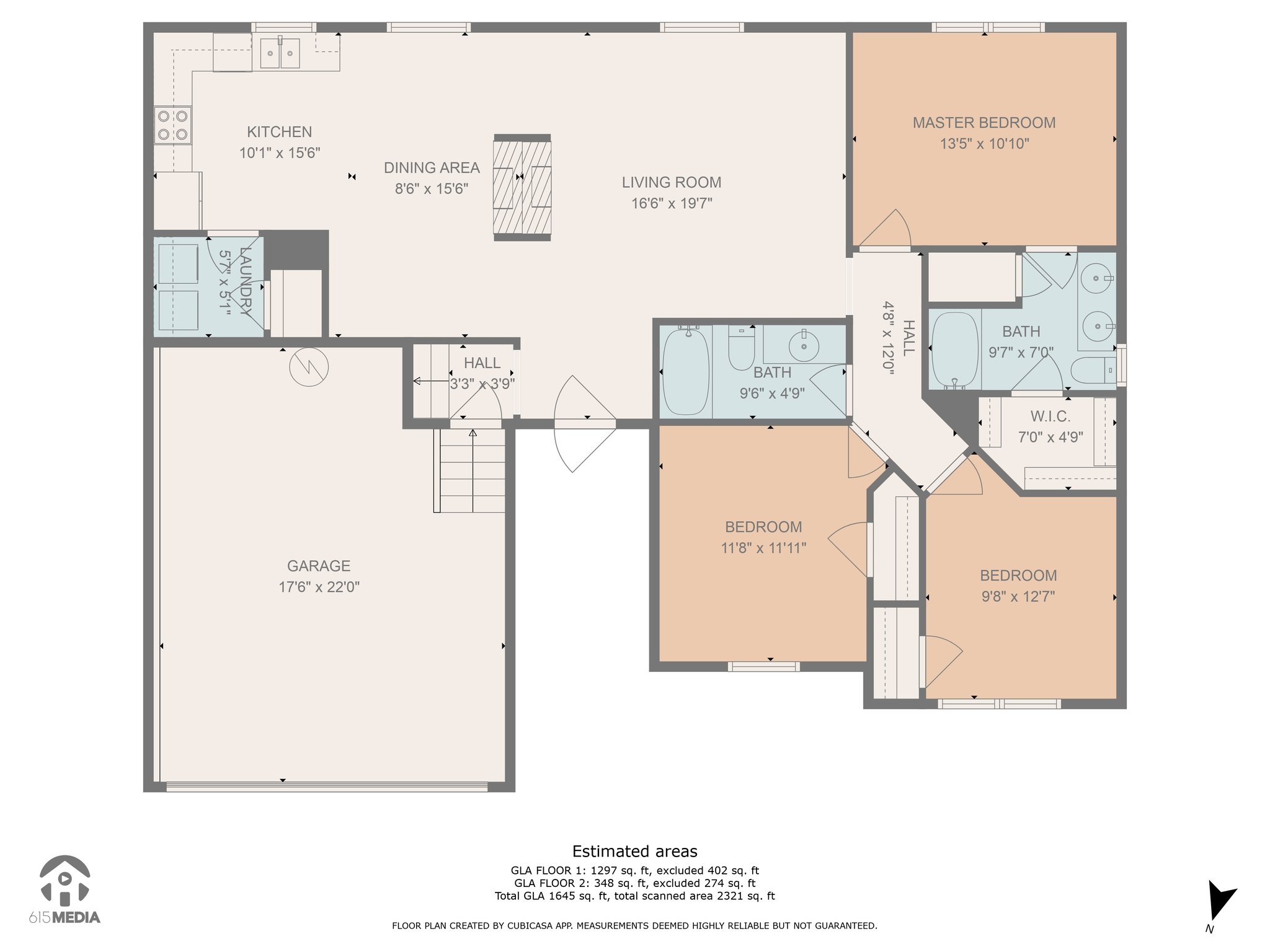
Floor Plans

Contact

Feel free to contact us for more details!

Marcus Williams

Keller Williams Realty Nashville/ Franklin

+16153367281

realtormwilliams@gmail.com